C'est un projet de fin d’année portant sur la réhabilitation d’un bâtiment abandonné de plus de 3000 m², situé à Nîmes, à proximité de la place Gabriel Péri. Construit en 1926 par Georges Pingusson, cet ancien théâtre-cinéma a connu de nombreuses transformations. Aujourd’hui, plus de 60 % du bâtiment est occupé par une résidence senior, ne laissant visibles que deux façades, témoins d’une architecture Art déco en grande partie altérée.
Le projet s’inscrit dans la réhabilitation de la partie anciennement occupée par le bar London Tavern, aujourd’hui fermée et progressivement dégradée. Malgré cet état, la structure existante demeure en bon état et présente un fort potentiel architectural, notamment par la richesse de ses façades et la singularité de son implantation entre plusieurs bâtiments mitoyens.
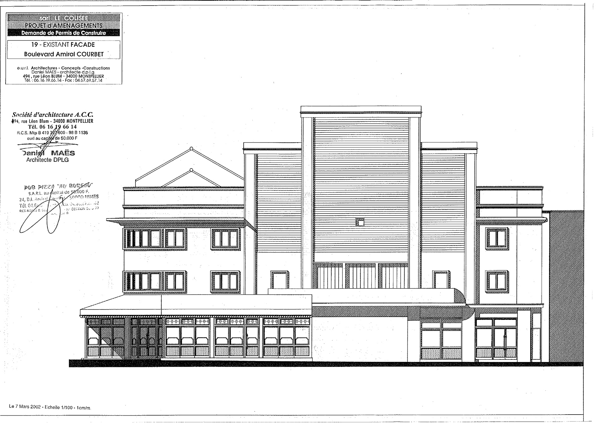
1926
2002
2014
À travers ce projet, j’explore la reconversion du lieu en un programme mixte comprenant un Centre d’Interprétation d'Architecture et du Patrimoine, et un café. Ce choix repose sur une volonté de transmission culturelle et de création d’un lieu ouvert à tous, capable de redonner une place active à ce bâtiment dans la vie nîmoise. Les espaces culturels sont implantés aux étages, tandis que le café et l'acceuil du CIAP constituent un socle plus poreux, favorisant les usages quotidiens et la convivialité.
La démarche s’appuie sur un important travail de recherche historique, notamment auprès de la DRAC, afin de comprendre l’évolution du bâtiment et l’impact des rénovations successives. Ces transformations, souvent réalisées sans vision d’ensemble, ont progressivement effacé la lisibilité de l’architecture d’origine. Ce constat a renforcé l’enjeu de cette réhabilitation, alors même que certains projets récents auraient pu faire disparaître toute trace de l’identité initiale du Colisé, pourtant classé au titre du patrimoine.
Mes objectifs et intentions
Le projet propose ainsi une restauration interprétée des façades, visant à réaffirmer les codes de l’Art déco imaginés par Georges Pingusson : lignes verticales, motifs géométriques, arrondis d’angle, acrotères, palette chromatique marquée et mise en valeur du béton. Ces éléments sont réinterprétés à travers une écriture contemporaine, intégrant des principes de durabilité et de modularité.
Le projet propose ainsi une restauration interprétée des façades, visant à réaffirmer les codes de l’Art déco imaginés par Georges Pingusson : lignes verticales, motifs géométriques, arrondis d’angle, acrotères, palette chromatique marquée et mise en valeur du béton. Ces éléments sont réinterprétés à travers une écriture contemporaine, intégrant des principes de durabilité et de modularité.
Ce travail en cours interroge la manière dont une architecture patrimoniale peut être réactivée sans être figée, et comment une réhabilitation peut devenir un outil de transmission, à la fois historique, architecturale et urbaine.
Expérience spatiale / scénographique
Le parcours intérieur a été pensé comme une expérience progressive, alternant espaces immersifs, zones de médiation et lieux de pause. Les espaces d’exposition plongent les visiteurs dans différentes temporalités du bâtiment, entre mémoire du Colisée et héritage du 7ᵉ art, tandis que le café propose une atmosphère plus ouverte et quotidienne. L’objectif était de concevoir un lieu culturel accessible, vivant et libre dans ses usages.
Réinterprétation architecturale de la façade
La transformation de la façade s’appuie sur une volonté de redonner lisibilité à l’identité architecturale du Colisée, profondément modifiée au fil des interventions successives. À partir des archives de 1926, les éléments caractéristiques du langage de Georges Pingusson ont été réinterprétés afin de retrouver une expression contemporaine : la verticalité, les jeux de volumes, les courbes et les motifs issus de l’Art déco sont réactivés sans chercher la reproduction à l’identique. L’enjeu n’est pas de reconstituer une façade disparue, mais de faire émerger une écriture architecturale capable de dialoguer avec le présent tout en rappelant l’histoire du lieu. Cette nouvelle lecture permet également de redonner une présence au bâtiment dans l’espace public et d’en renforcer le caractère signal.
Impact urbain / quartier
Au-delà de la réhabilitation du bâtiment, le projet questionne également son rôle dans le tissu urbain environnant. Situé dans un secteur en perte d’attractivité, le Colisée bénéficie pourtant d’un environnement patrimonial riche, à proximité de la Porte Auguste, de l’église Saint-Baudile et de la place Gabriel Péri. L’intervention vise à recréer du lien entre ces différents pôles tout en redonnant une dynamique au quartier, notamment à travers la réactivation de ses commerces de proximité et la requalification de l’espace public.
Ce que ce projet m’a appris
Ce projet a renforcé mon intérêt pour la réhabilitation du patrimoine existant et m’a permis d’explorer le lien entre architecture, mémoire collective et narration spatiale. Il a également confirmé mon envie de travailler sur des projets où l’intervention architecturale dialogue avec l’histoire d’un lieu tout en répondant à des usages contemporains.